En Çok Arananlar
CNC,
CNC Torna,
Torna,
Pres Makinaları
Resmi büyütmek için resmin üzerine tıklayın.
Diğer resimlere göz atmak için resimleri parmağınız ile kaydırabilirsiniz.
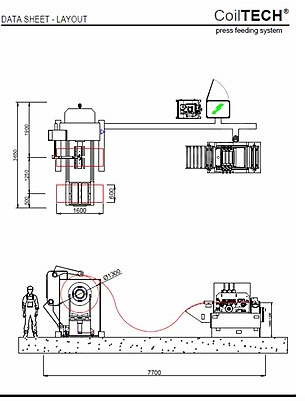
Sıfır ayarında Coiltech rulo açıcı 2023 model makina özellikleri resimlerde mevcuttur
Sac İşleme / Rulo Açma - Kesme / Roll Form Hattı
Nr.13655 Sac Boy Kesme Tesisi Marka: Alman Sac Genişliği: 2000 mm Sac Kalınlığı: 5,0 – 12 mm Max.Rulo Ağ
Sac İşleme / Rulo Açma - Kesme / Roll Form Hattı
Asma tavan c ve u profilleri, ud28, cd60, omega, channel, corner, delikli alçı köşe, kaba sıva köşe profili, dilme hattı, kapropan hattı, t24 profil grubu
Sac İşleme / Rulo Açma - Kesme / Roll Form Hattı
90'LIK ARHİTECH MAKİNE SADECE 80 TON BASIM YAPTI GARANTİSİ DEVAM ETMEKTEDİR. LİSANS YAZILIMI MEVCUT, HİÇ BİR HATASI YOK SIFIRA YAKIN BİR KULLANIMD
Sac İşleme / Rulo Açma - Kesme / Roll Form Hattı
Boy kesme hattımız 1600 mm sac genişliğinde 15.000 kg’dan 30.000 kg’a kadar rulo ağırlığında sacların boy kesilmesinde ihtiyacınız olan
coiltech rulo açıcı
Firma: EKS GRUP KALIP MAKİNE / ENES KURTKAYA
coiltech rulo açıcı
Firma: EKS GRUP KALIP MAKİNE / ENES KURTKAYA

